電動調節閥
電動調節閥通經范圍:20-200mm
壓力等級:1.0-10.0mpa(150LB 300LB 600LB)
閥體材質:WCB 304 316 316L
驅動方式:電動電子式 電動智能式
連接方式:法蘭 焊接
控制方式:開關型 調節型
24小時咨詢熱線
13306260970
壓力等級:1.0-10.0mpa(150LB 300LB 600LB)
閥體材質:WCB 304 316 316L
驅動方式:電動電子式 電動智能式
連接方式:法蘭 焊接
控制方式:開關型 調節型
應用行業
| 化工、石油 | 輕工、電站 |
| 泊全等要求流重大,世控里小的工業自控系統中。 |
立信隆電動單座調節閥優勢
- 1. 頂導向結構,流通精度高 單座電動調節閥采用頂導向結構,閥體結構緊湊,流體通道呈現S流線型,壓降損失小,流體量大,可調范圍廣,流通特性精度高。
- 2.閥芯導向面積大,抗震性好 閥芯導向面積大,抗震性好,閥座關閉性能符合GB/T4213-92標準,調節閥配用接收ON-OFF或4-20ADC或1-5V的直流信號進行比例動作的小型、堅固、高精度的執行機構,更適用于要求可靠性及關閉性能高的高溫、低溫及高壓場合下使用。
材質圖表

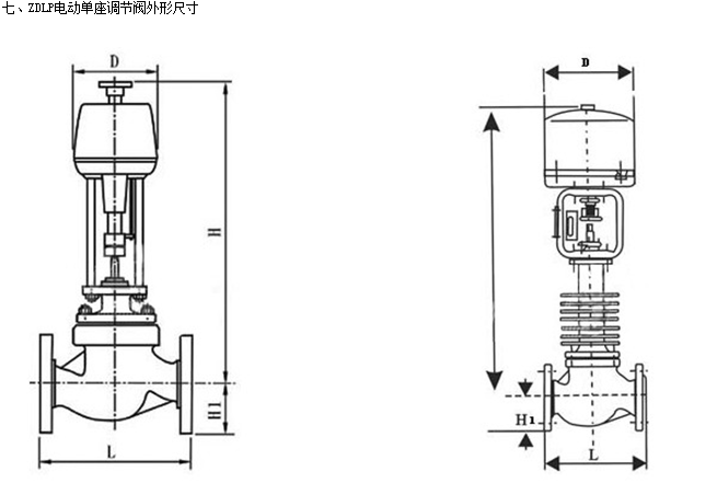
尺寸重量參數




- 服務流程
- 電話溝通,了解基本需求
- 合格物流包裝
- 上門現場溝通
- 指導安裝調試
- 雙方確認,選型成功
- 啟動優質售后
- 下單生產制造

- 了解您的實際需求創造 更高價值
- 提高合理選型方案,確保買到合格的產品
- 分析未來使用場景,計算長期使用成本
- 提供更多技術服務,節約能源

- 幫您解決現有 流體控制難題
- 系統壓力下不穩定,設備升溫過慢?
- 原有供應商不能提供正確技術支持?
- 無法準確控制流體壓力溫度?

-
已經為235位工廠用戶解決了
各式近1000種管道系統解決方案 - 99家印染行業用戶
- 22家視頻飲料行業用戶
- 39家紡織行業用戶
- 34家環保水處理行業用戶
- 28家包裝行業用戶
- 13家機械制造行業用戶

相關案例
衢州市鼎盛化工科技有限公···

項目客戶: 衢州市鼎盛化工科技有限公司最終用戶:···...立信隆流體和廣州生物設備···

10月中旬,廣州維**生物科技是一家專門生產病理···...機械設備知名品牌史陶比爾···

近日, 昆山立信隆流體 憑借多年的技術經驗和高效···...
相關產品
自由浮球式疏水閥

WK自由浮球式疏水閥能連續排水性能穩定,排水量大···...杠桿浮球式蒸汽疏水閥

杠桿浮球式疏水閥排水量大,連續排水沒有積水高效節···...倒桶式蒸汽疏水閥

WK倒桶式蒸汽疏水閥內置過濾器止回閥活動式杠桿,···...





咨詢客服
返回列表





請收藏昆山立信隆流體科技有限公司
請關注昆山立信隆流體科技有限公司